Häufig gestellte Fragen (FAQs).

Die Antwort auf Ihre Frage.

Finden Sie hier die wichtigsten Fakten zur thermisch trennenden Befestigung Schöck Tronsole® für die Trittschalldämmung von Treppen.

mehr lesen
  • Zur akustischen Entkopplung von Aufzugsschächten und Decken bzw. von Aufzugsschächten und Treppenläufen /-podesten kann die Schöck Tronsole® Typ P eingesetzt werden. 
  • Hierzu ist ein in sich ausgesteifter Aufzugsschacht Voraussetzung, da die Schöck Tronsole® Typ P nicht zum Aussteifen des Aufzugsschachtes genutzt werden darf. 
  • Beim Einsatz der Schöck Tronsole®  Typ P ist auf die bauseitige Bewehrung zu achten, welche in der Technischen Information Tronsole® aufgezeigt ist. 
  • In diesem Dokument finden Sie darüber hinaus weitere Informationen, beispielsweise zur Bemessung und Einbau.  
  • Ermüdungsrelevante Anforderungen sind bei der Gestaltung des Bewehrungsanschlusses zu berücksichtigen.  
  • In der nachfolgenden Abbildung ist die akustische Entkopplung eines ausgesteiften Aufzugsschachtes vom umlaufenden Treppenhaus sowie der Decke mit der Tronsole®  Typ P dargestellt  
  • Zur ganzheitlichen akustischen Entkopplung empfiehlt sich der Einsatz weiterer Tronsole® Typen. Mit der Tronsole® Typ F wird der Anschluss von Treppenlauf an Podest akustisch entkoppelt und die Fugenplatte Tronsole® Typ L hält den Bereich zwischen Treppenlauf und Treppenhauswand frei von Verschmutzungen. Alle drei Typen zusammen bilden ein Schallschutzsystem – die blaue Linie.  
  • Das Schallschutzsystem Schöck Tronsole® ist derzeit nur für den Einsatz im Innenbereich geeignet.  
  • Ein thermisch entkoppelter Anschluss von Treppen im Außenbereich lässt sich über das tragende Wärmedämmelement Schöck Isokorb® realisieren. 
  • Neben den Wärmedämmeigenschaften stehen für ausgewählte Isokorb® Typen in der Anschlussvariante Beton-Beton zusätzlich Kennwerte zur Bewertung des Trittschallverbesserungsmaßes zur Verfügung. Nähere Informationen hierzu finden Sie in der Technischen Information Bauphysik

Ausführungsvariante 1: Anschluss der Podestplatte 

  • In nachfolgendem Beispiel liegt der Stahlbeton-Treppenlauf am Treppenaustritt gelenkig auf der Stahlbeton-Podestplatte auf. Der Lauf selbst schließt nicht an die Gebäudeaußenwand an. 
  • Der Anschluss der Podestplatte erfolgt mit den Schöck Isokorb® Elementen für Beton-Beton Anschlüsse. 
  • Bei der statischen Bemessung der Isokorb® Elemente sind die erhöhten Lastspitzen aus der seitlichen Auflagerung des Treppenlaufes zu berücksichtigen. Im direkt benachbarten Anschlussbereich zum Treppenlauf empfiehlt sich somit in der Regel der Einsatz der Isokorb® T/XT Typ Q-P bzw. T/XT Typ C Elementen. 
  • Der Schallschutz ist im Einzelfall zu prüfen.

Ausführungsvariante 2stufenweiser Anschluss mit Isokorb® T Typ S 

  • Der thermisch entkoppelte Anschluss einzelner Stahlbeton-Treppenstufen an die Stahlbeton-Gebäudeaußenwand kann mit Hilfe der Isokorb® T Typ S Elementen erfolgen. 
  • Die Module der Elementreihe Isokorb® T Typ S sind normalerweise für den Einsatz als thermische Entkopplung zwischen zwei Stahlprofilen geeignet, können aber durch den Einsatz von entsprechend konstruierten Einbauteilen auch als Spezialanwendung in Stahlbetonbauteilen zum Einsatz kommen. 
  • In nachfolgenden Abbildungen sind die bereits montierten Einzelstufen, die zugehörigen Einbauteile für die Stahlbetonwand sowie die Fertigteilstufen mit bereits integrierten Einbauteilen abgebildet. 
  • Die Einbauteile sind nicht Teil des Isokorb® Lieferproduktes. Sie sind bauseits zu stellen sowie individuell durch den zuständigen Tragwerksplaner zu konstruieren und zu bemessen. 
  • Zu beachten ist, dass im vorgestellten Beispiel die Isokorb® T Typ S Elemente in der Sonderlösung „lose“ eingesetzt sind, um eine nachträgliche Montage an den Einbauteilen sicherzustellen. In diesem Fall steht Ihnen die Schöck Anwendungstechnik unterstützend zur Seite
  • Der Schallschutz ist im Einzelfall zu prüfen.

Tronsole® Typ mit / ohne Brandschutz-Set

  • Beim Einsatz der Schöck Tronsole® Typ Q innerhalb eines Sichtbetontreppenhauses kann die Anforderung bestehen, die Wandaussparung  zu verkleiden, sodass sie für das Auge nicht mehr sichtbar ist.  
  • Dabei ist bei der Gestaltung und Anbringung der Verkleidung der Wandaussparung auf eine schallbrückenfreie Ausführung zu achten. Dies kann durch eine elastische Fuge zum Tragelement sowie durch einen Dämmstoff zur Wandaussparung gewährleistet werden.  
  • Wie eine Verkleidung der Wandaussparung aussehen und der Einsatz im Treppenhaus erfolgen kann, ist den nachfolgenden Zeichnungen beispielhaft zu entnehmen. 
  • Ob ein Brandschutz-Set notwendig ist hängt von den geforderten Brandschutzanforderungen ab. Dies ist bei der Gestaltung der Verkleidung zu berücksichtigen. 

 

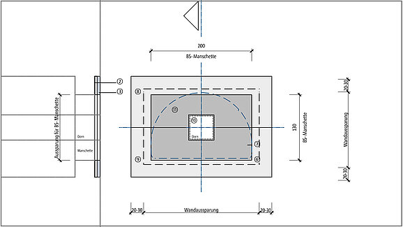
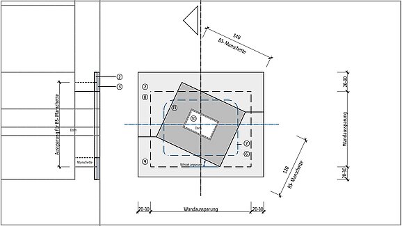
Tronsole® Typ P mit / ohne Brandschutz-Set 

  • Beim Einsatz der Schöck Tronsole® Typ P innerhalb eines Sichtbetontreppenhauses kann die Anforderung bestehen, die Wandaussparung für das Auge ansprechend zu verkleiden.  
  • Dabei ist bei der Gestaltung und Anbringung der Verkleidung der Wandaussparung auf eine schallbrückenfreie Ausführung zu achten. Dies kann durch eine elastische Fuge zum Tragelement sowie durch einen Dämmstoff zur Wandaussparung gewährleistet werden.  
  • Wie eine Verkleidung der Wandaussparung aussehen und der Einsatz im Treppenhaus erfolgen kann, ist den nachfolgenden Zeichnungen beispielhaft zu entnehmen. 
  • Ob ein Brandschutz-Set notwendig ist hängt von den geforderten Brandschutzanforderungen ab. Dies ist bei der Gestaltung der Verkleidung zu berücksichtigen.